CALETA DESING, Piso 5 «A» – VISTA AL MAR
Descripción
Dirección: Avenida Julio A. Roca esquina 28 de Julio – Puerto Madryn
Ubicado en pleno centro de la ciudad. Departamentos con diseño exclusivo, gimnasio, SUM, cocheras cubiertas y un moderno centro comercial.
Calidad, confort y vista al mar, todo en un solo lugar.
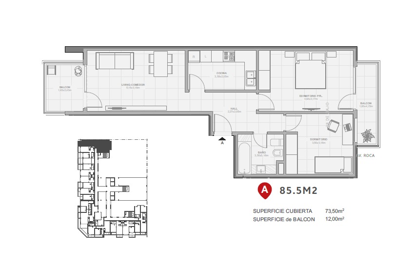
Departamentos de dos y tres dormitorios, con cocina completamente amoblada integrada al estar comedor, baño en suite y balcón con vista al mar.
Características:
-
Calidad constructiva
-
Carpintería exterior de aluminio con doble vidriado hermético (DVH)
-
Calefacción por losa radiante con caldera individual
-
Revestimientos en porcelanato de primera calidad
Unidad: Piso 5 “A”
-
Superficie cubierta: 82,00 m²
-
Balcón: Sí (2)
-
Superficie total: 82,00 m²
Edificio:
-
Cantidad de pisos: 9
-
Departamentos por piso: 7
-
Destino: Vivienda
-
Servicios: SUM, cocheras y gimnasio
Antigüedad: A estrenar
Orientación: Sur
Estado del inmueble: Excelente
Disponibilidad: Inmediata
Luminosidad: 10
DIRECCIÓN
-
DIRECCIÓN Avenida Julio A. ROCA esquina 28 de Julio
-
País Argentina
-
Province/State Chubut
-
City/Town Puerto Madryn
Descripción general
- Inmueble 6007
- Precio Consultar precio
- tipo de propiedad Departamentos
- Estado de la propiedad Venta
- Etiqueta Venta
Características
Inicie sesión o regístrese para ver la información de contacto de este agente/propietario.
